The architectural design of two concession buildings is underway in Franklin County, Kentucky. Historically known for world-renowned bourbon facilities, Franklin County is looking to attract a different kind of tourist with the Lakeview Park Improvements Program.
About Frankfurt, Kentucky
Franklin County, Kentucky is nearly as old as this nation. Established in 1795, only three years after Kentucky became a state, Franklin County was named after Benjamin Franklin and is home to the state’s capital, Frankfort. Sitting between Lexington and Louisville, Frankfort—the third largest city in Kentucky—is the birthplace of the Buffalo Trace Distillery. This world-renowned distillery is the heart of the city and the main driver of tourism. Visitors can come to Frankfort to tour distilleries, experience tastings, and learn about the Kentucky Bourbon Trail.
While Frankfort has traditionally offered a plethora of options for adults, the city is looking to appeal to families through the Lakeview Park Improvements. The intention is to build a modern softball facility for tournaments that will bring in visitors, promote healthy lifestyles, and boost local business. These enhancements signal a broader effort to diversify the city’s appeal and foster year-round recreational opportunities for all ages.
Lakeview Park Concessions Design in Kentucky
Lakeview Park is 132 acres of recreational space at the center point of Frankfort. Currently, the park includes pavilions, a walking/jogging trail, various sports fields, a skate park, splash pad, and a 9-hole golf course. Already a focal point for community life, the intention of these upgrades is to turn the park into a regional destination. Improved sports infrastructure is expected to draw youth teams and their families from neighboring counties and beyond, creating a ripple effect for local hotels, restaurants, and retail businesses.
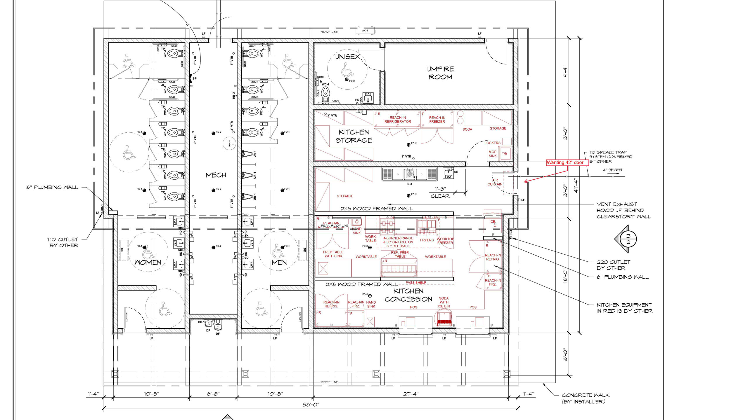
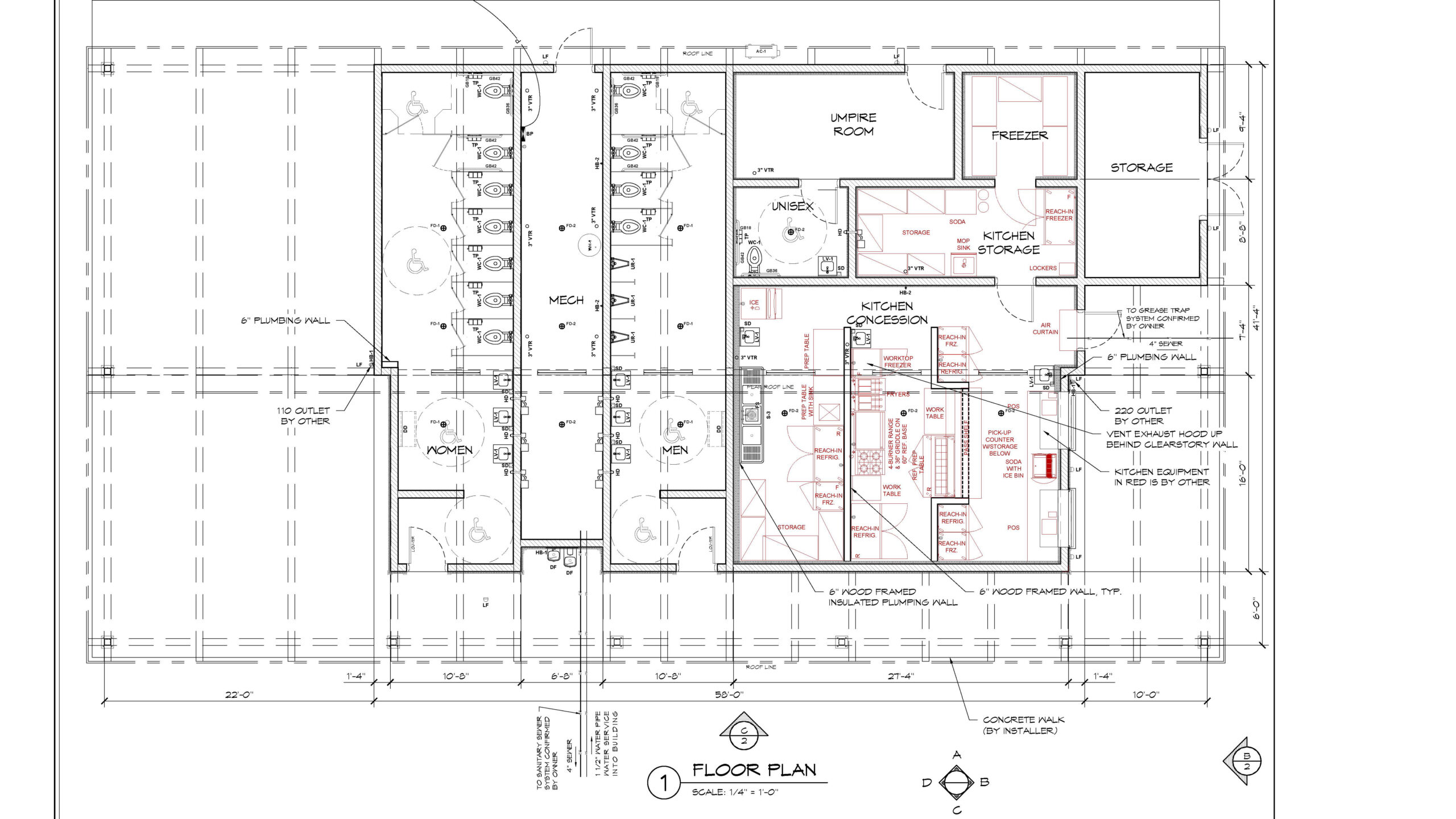
The Lakeview Park Improvements Project has been underway for at least two years. Funded internally through general funds, the first phase includes adding seven new softball fields, new scoreboards, picnic tables, dugouts, shelters, benches, and two Romtec multipurpose buildings. Both concession building designs include robust kitchen space, umpire rooms, and large multi-user restrooms for men and women.
However, this is the first phase and just the beginning of what the county has in mind for this park. Future phases may include amphitheaters, walking bridges, expanded parking, and even splash pad enhancements, depending on community feedback and additional funding.
How Romtec Got Involved in the Building Designs for Frankfurt, Kentucky
Romtec first became aware of this project through Hitchcock Design Group in Indiana. We were selected to provide the design and supply of the buildings because of our design capabilities in Kentucky and our short timelines. Currently, Romtec has the fastest timelines in the industry. Romtec is known for delivering buildings in as short as four months, depending on how quickly we can get the plan set approved by the local building department. However, a more typical timelines lies between 6-8 months depending on approvals.
“Holly has been great,” assured Wes Davis of Codell Construction Company. Holly is one of Romtec’s Project Managers. She works as the liaison between the customer—Wes Davis in this case—and Romtec’s team of architects and engineers. Holly will make sure that the plan set gets approved and revised in a manner that will reach the customer’s anticipated timelines.
It’s the approval of the plan set that proves time and time again to be the trickiest part of Romtec building projects. While Romtec can control our timelines and how long it takes for our team to respond to comments and revise the plan set, the building department review can be a gamble. Romtec recommends that customers check with their local building department before submitting the plans to get a grasp on their typical timelines. This allows project managers, like Holly, to more accurately determine the timelines of the project and project when the building or buildings may be completed.
As for garnering the materials, Romtec orders these materials so frequently that we have a clear understanding of how long it will take to get these items to our facility for quality control. We can accurately make purchases within the allocated time frame and get them delivered in time for construction.
Lakeview Park Improvements Project Concessions Design in Kentucky
The Lakeview Park Concession Buildings designs for Kentucky are unique with split roof structures, storage space with double doors, two concession windows, and skylights to let natural lighting in throughout the building. The “west concessions” building is the larger structure with a 22’ roof extension to create a shaded space for visitors to relax and enjoy their concessions purchases.
In many ways, these Kentucky concession buildings represent more than infrastructure—they symbolize community investment and strategic planning. Franklin County’s commitment to improving quality of life through accessible recreation and thoughtful design highlights a forward-looking vision that balances historical pride with future growth.

